SUPHASIDH                                                      



CHONBURI MULTI-PURPOSE BUILDING 2024  Chonburi / THAILAND

BANGKOK APARTMENT 2024  Bangkok / THAILAND

CHULALONGKORN UNIVERSTIY AUDITORIUM FINALIST / 2022  Bangkok / THAILAND

PAN LIGHT FIRST PRIZE / 2022 VIABIZZUNO LATUALUCE DUE / Bologna / ITALY

VITHA RECEPTION 2021  Khao Khor / THAILAND

REPURPOSING BANGKOK ROWHOUSE 2020  Bangkok / THAILAND

GREY MATTER RUNNER UP / 2019  EUROPAN 15 / Auby / FRANCE 
KIC TRIPOLI 2019  Tripoli / LEBANON
100% WOODEN HOUSE FIRST PRIZE / 2019  Montlouis-sur-Loire / FRANCE

PARIS APARTMNET 2019  Paris / FRANCE

FINLAND NATIONAL ART MUSEUM ANNEX 2019  Helsinki / FINLAND
LA CHARTREUSE DE NEUVILLE  2018  Neuville-sous-Montreuil / FRANCE

COLOR LAB SALON 2018  Bangkok / THAILAND
RUSSIAN STANDARD HOUSING THIRD PRIZE / 2018 Moscow / RUSSIA
KYOTO HOUSE  2017  Kyoto / JAPAN
SEOUL ART COMPLEX  2017  Seoul / KOREA
YOYOGI PARK INSTALLATION FOR 2020 OLYMPIC 2017  Tokyo / JAPAN
LOMBADINI ANTIPAROS RESIDENCE 2016 Antiparos / GREECE

CHANDRA RESIDENCE 2014  New Hamshire / USA

HOLDING GROUND  2018 New York City Penn Station / USA

REHABITAING SWOPE CENTER  2019 Wood Hole / USA

SHIKUMEN LI LONG HÔTEL SALON 2019  Shanghai / CHINA

LASTING TIMBER  2020  Raleigh Durham / USA

COLUMNIZATION  2020  Raleigh / USA



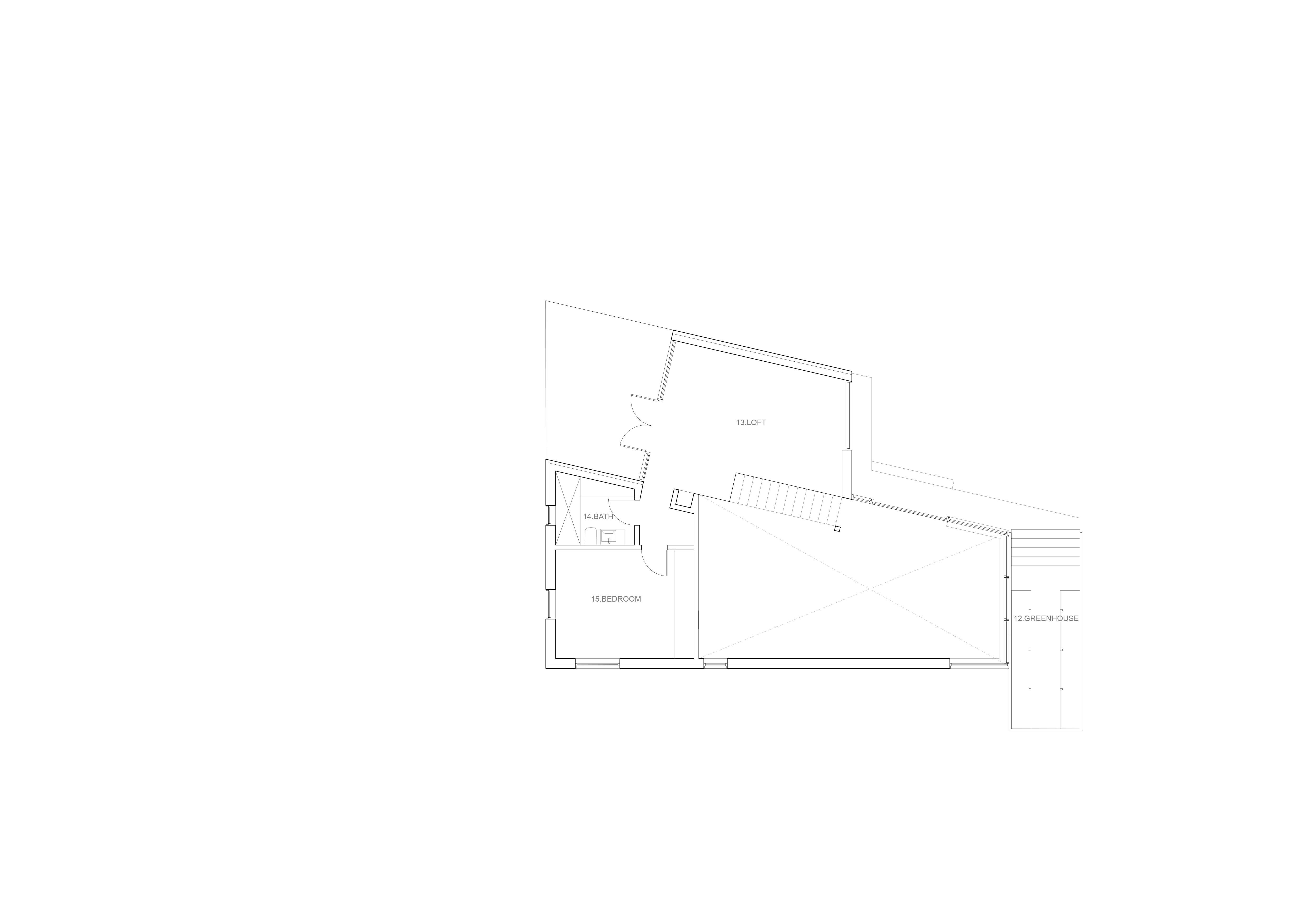
Chandra Residence

with BriggsKnowles Architecture + Design
Program: Private Residence
Location: New Hamshire, USA
Area: 180m2
Status: Completed 2019

Kavitra Chandra, our client, is an electromagnetic engineer from India, who is also a full-time professor at the University of New Hampshire. Her parents spend every summer with here hence the house hosts one master bedroom along with 2 guest bedroom. The geometry of the ceiling connects the ground floor living area to the second level loft. The landscape comes into the loft level atop the garage. The house end with a glass greenhouse, cantilevered out of the living space.